Magazzino in affitto

Milano, Via Vittorio Bottego - Crescenzago
€ 900 / mese
2 locali 2 locali
90 Mq 90 Mq
1 bagno 1 bagno

Magazzino in affitto

Milano, Via Vittorio Bottego - Crescenzago

Descrizione annuncio

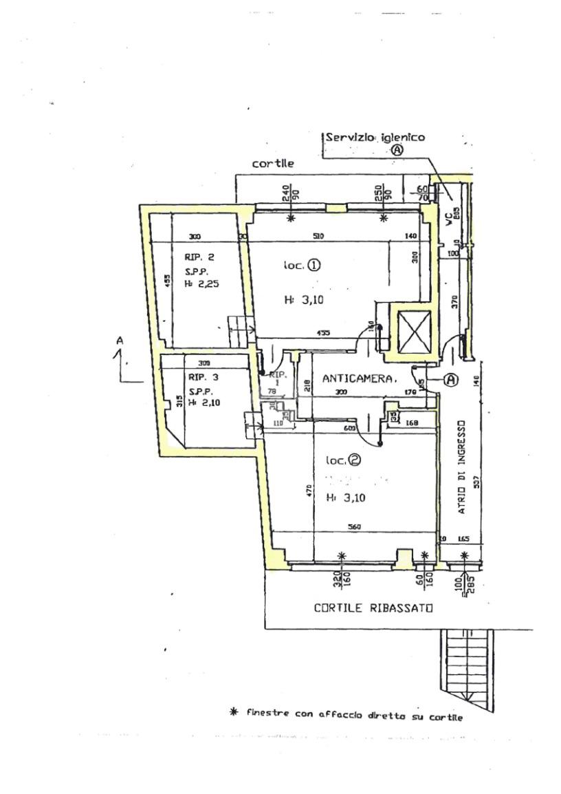
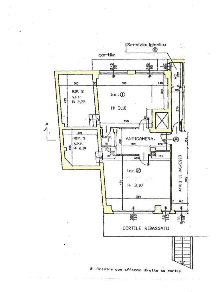
AFFITTANSI Via Palmanova (Via Bottego) nelle immediate vicinanze della fermata metropolitana M2 Crescenzago (Linea Verde) - Con accesso indipendente dal cortile, seminterrato ideale uso ufficio, composto da un ingresso/reception e due ampi locali finestrati, dotati ciascuno di due vani a uso deposito; servizio igienico. Altezza interna 3,10 metri. Biesposto. Riscaldamento centralizzato. In Buone Condizioni.

Mostra tutto

Nelle vicinanze

Trasporto pubblico Trasporto pubblico
Crescenzago
Crescenzago
310 m
Cascina Gobba
Cascina Gobba
1,5 Km
stazione di Cimiano
stazione di Cimiano
500 m
stazione di Cascina Gobba
stazione di Cascina Gobba
1,5 Km
Anassagora
Anassagora
1,6 Km
Ricariche auto elettriche Ricariche auto elettriche
Eneldrive Ospedale San Raffaele
1,5 Km
Eneldrive Milano 2
1,5 Km
Sesto San Giovanni Adriano | EnelX
1,7 Km
LIDL Milano Viale Monza
1,9 Km
Sesto San Giovanni Cimitero | EnelX
2,1 Km
Scuole Scuole
Istituto Comprensivo Statale G.B. Perasso
70 m
Istituto San Giuseppe
290 m
IPSIA Luigi Settembrini
410 m
Fondazione Istituto Rizzoli per l'insegnamento delle Arti Grafiche
450 m
A.F.G.P. Centro Padre Piamarta
520 m
Farmacia Farmacia
Farmacia
360 m
Gloria
470 m
Pontenuovo
750 m
Farmacia del Parco
760 m
A.F.M. COMUNALE N.82
860 m
Ospedali Ospedali
Poliambulatorio di via Don Orione
630 m
San Raffaele - Turro
1,2 Km
Ospedale San Raffaele
1,6 Km
Polo riabilitativo Istituto Gaetano Pini
1,9 Km
Istituto Clinico Città Studi
2,6 Km
Supermercati Supermercati
Conad
320 m
Penny
870 m
Coop
880 m
Supermercati
1,0 Km
Esselunga
1,1 Km
Negozi Negozi
Mini Spesa Supermercato
580 m
Casa del Biscotto
580 m
La Fornarina
800 m
OVS
890 m
Negozi
930 m
Bar Bar
Bar Arici
390 m
District 272
420 m
Bar
420 m
Convertini
800 m
Company Club
830 m
Ristoranti Ristoranti
Mani in Pasta
390 m
Ristoranti
420 m
El Cadreghin
730 m
Jam Grill House
820 m
Bar Trattoria Pizzeria "Da Marco"
1,0 Km
Mostra tutto

Caratteristiche

Rif.:
61138780
Piano:
Seminterrato di 6 con ascensore
Totale piani:
6
Condizionamento:
Assente
Ascensore:
Riscaldamento:
Centralizzato
Mostra tutto
Prezzo Prezzo
€ 900 / mese
Spese annue Spese annue
€ 3.430

Altre caratteristiche

Descrizione dei locali
Bagno Con Finestra

Classe Energetica

G
G
G
G
G
G
G
G
G
EP globale non rinnovabile:
450.00 kW h/m² anno
EP globale rinnovabile:
75.00 kW h/m² anno
EP invernale del fabbricato:
EP estiva del fabbricato:
Anno di costruzione:
1960
Riscaldamento:
Centralizzato
Tipo impianto:
A radiatori
Tipo alimentazione:
Metano

Ti interessa visionare l'immobile?

Fissa un appuntamento  Fissa un appuntamento

Richiedi informazioni

Clicca su Leggi per aprire l'informativa
* Questi campi sono obbligatori
Affiliato
Tecnoimpresa Due Snc
Via Rombon , 21 20134 Milano (MI)

Il nostro staff


  • Corrado Calabrese
    Affiliato

  • Maurizio Altichieri
    Affiliato
Via Rombon , 21 20134 Milano (MI)
Zona: Milano Est
Mostra su mappa
Orari: dal lunedì al venerdì dalle 9.00 alle 20.00 - sabato dalle 9.00 alle 17.00
Affiliato
Tecnoimpresa Due Snc
Via Rombon , 21 20134 Milano (MI)

2026 Tecnocasa Franchising S.p.A. - P. IVA 08365160152 - Via Monte Bianco 60/A 20089 Rozzano (MI). Ogni agenzia ha un proprio titolare ed è autonoma. Privacy policy | Policy utilizzo | Cookie policy